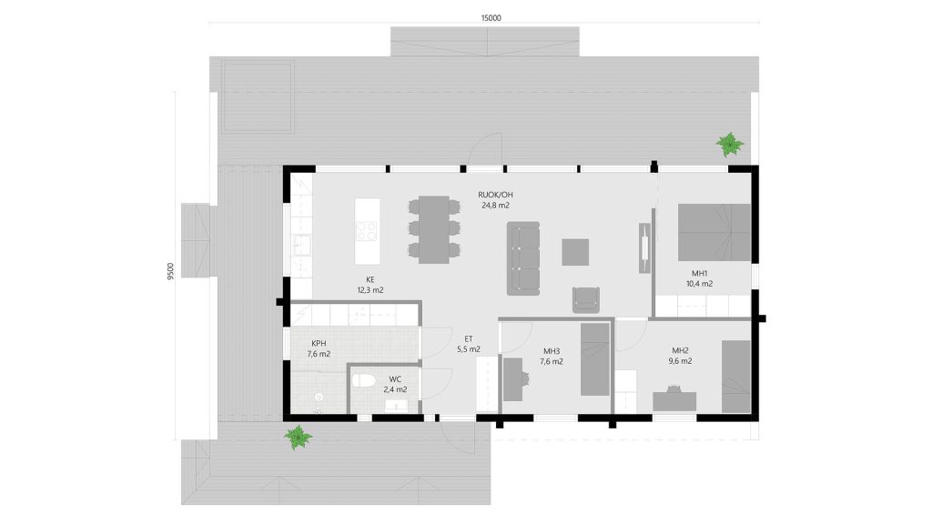
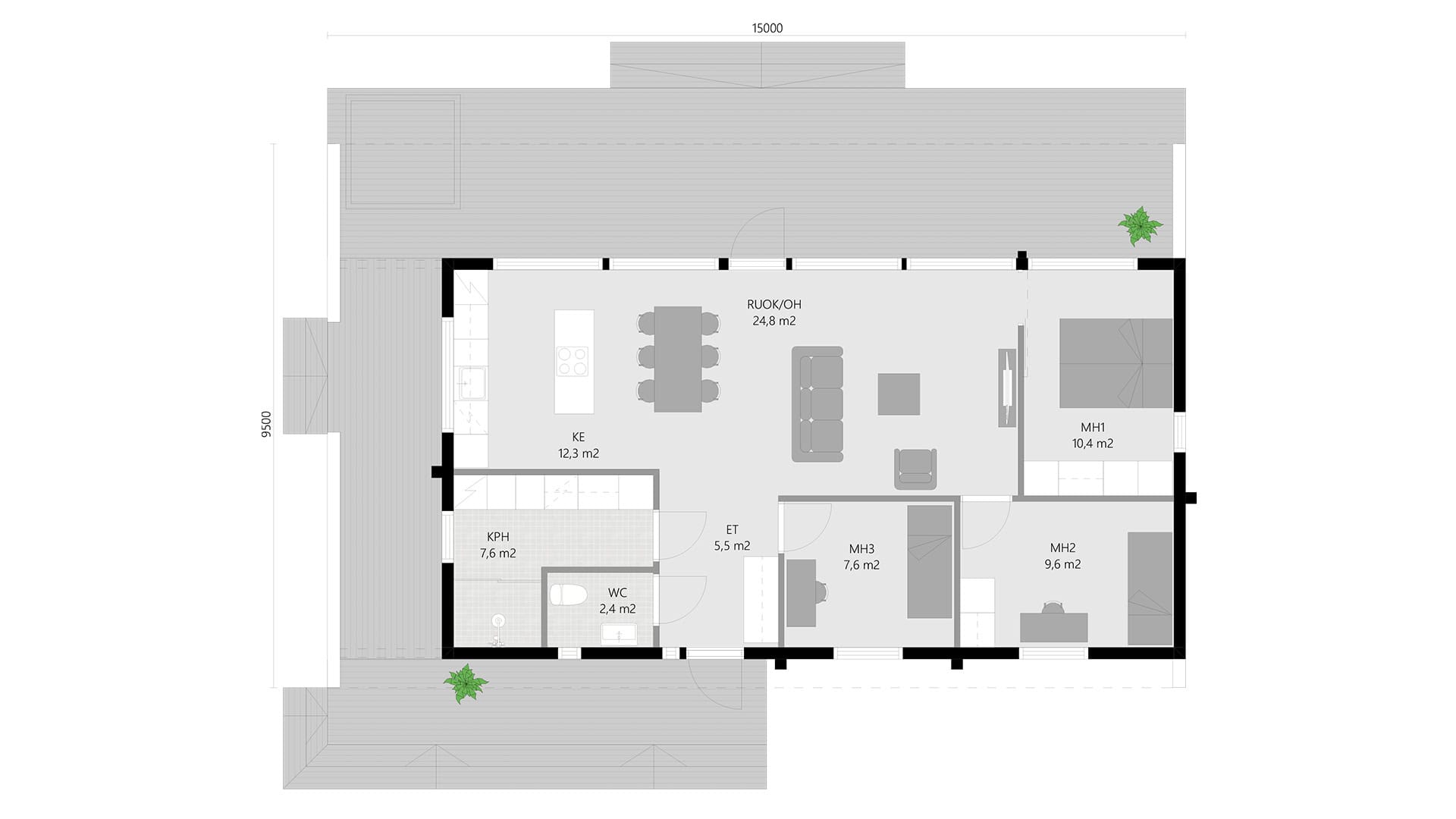
sumarhús- Tuuma 91
Tuuma býður upp á rúmgott sameiginlegt rými og friðsæl einkarými, sem eru í fullkomnu jafnvægi fyrir frístundaheimili. Baðherbergið er rúmgott og þar er gert ráð fyrir plássi fyrir þvottavél.
Tuuma sameinar nútíma hönnun með rúmgóðu afþreyingarsvæði, sem hentar vel sem annað heimili. Yfirbyggða veröndin með veggjum beggja vegna veitir gott skjól og þægindi.
Verð og innihald efnispakka miðast við bjálk en einnig er hægt að fá húsin í svokölluðu CUTsystem.
Verð á efnispakka: 28.900.000,-kr
Innifalið í efnispakka
Teikningar og önnur gögn:
- Framleiðsluteikningar fylgja, ekki íslenskar teikningar né heldur íslenskir séruppdrættir.
- Efnislisti yfir bjálka
- Efnislisti fyrir allt viðarverk sem er innifalið
- Leiðbeiningar um samsetningu
Útveggir
- Allir bjálkar í útveggi koma heflaðir og tilsagaðir.
- Verð á húsum miðast við bjálka 202x220mm
- Glugga- og hurðakarmar
- Einangrunarkítti milli bjálka og í hornin
- Þéttipappi milli gólfplötu og bjálka
- Múrboltar
- Járnlengingar á bjálka
Innveggir
- Allt efni í innveggi sem eru hefðbundir grindarveggir
Þak
- Þaksperrur (cc 900mm)
- Loftunarristar
- Þakkæðning
- Vinklar, gataplötur, naglar
- Loftapanill
Gólfefni
- Aðeins gólfefni í milliloft
Gluggar
- MEKA gluggar hvítir tré- og ál með þreföldu gleri. Opnast inn
- Flugnanet fyrir opnu fögin
Útihurðar
- Hvítar að utan og innan
- Þrefallt gler í hurðum
- Hurðarkarmar úr hvítir furu
- Þröskuldur úr harðvið
Innihurðar
- Hvítlakkaðar furuhurðar
- Þröskuldar fyrir baðherbergi
- Rennihurðar eru ekki innifaldar
Stigi innanhúss (þar sem við á)
- Lakkaður furustigi
- Stigaþrepin riffluð.
Verönd
- Pallaefni í verönd 28x95mm
- Dregarar undir verönd 48×98..198mm cc600
- Efni í handrið 28x95mm og 28x45mm
Húsin afhendast ýmist á hafnarbakka í Reykjavík eða hjá Eimskipum í Hafnarfirði.







