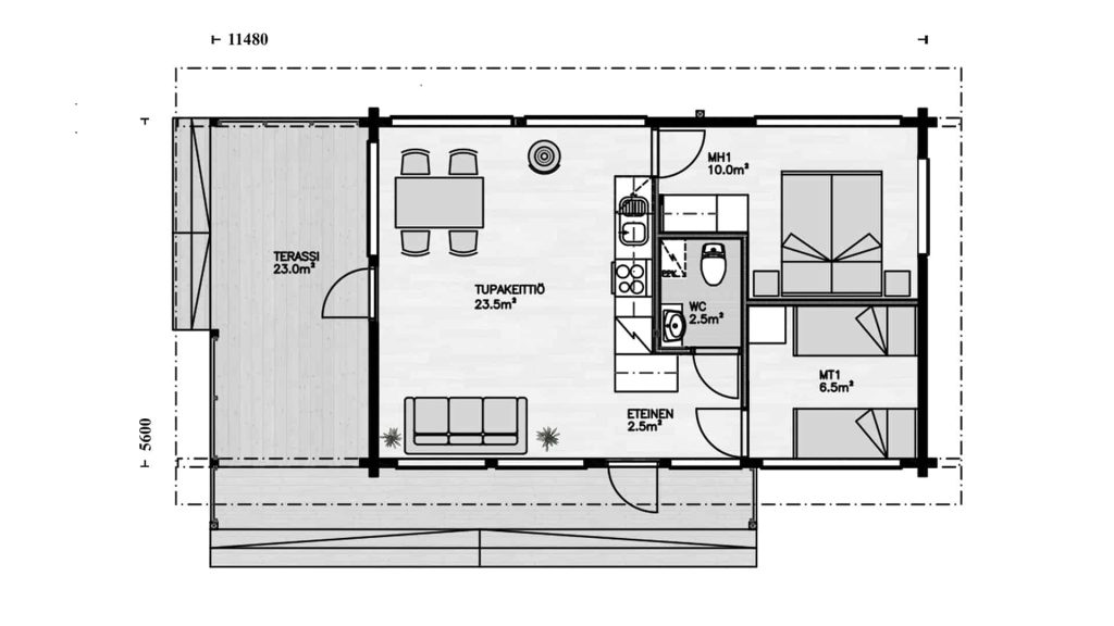
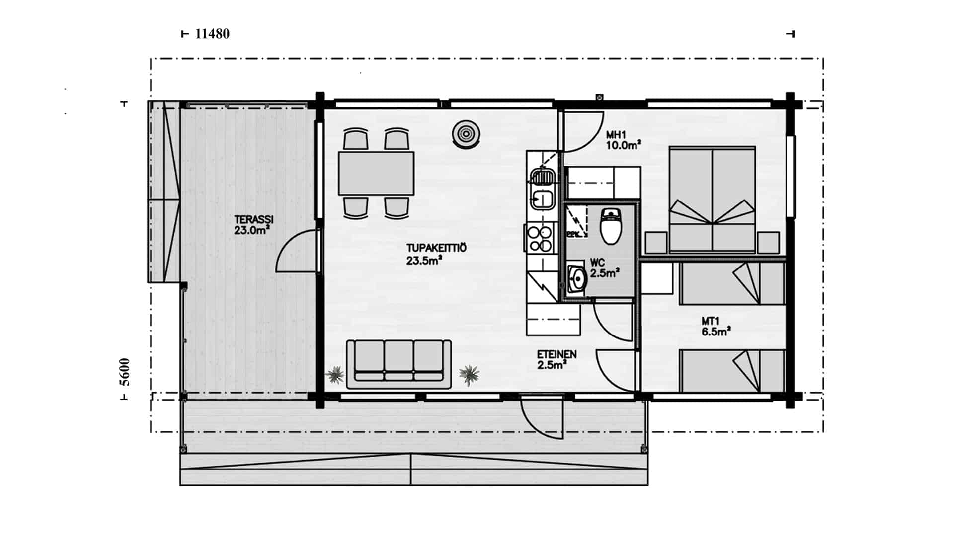
sumarhús - PIILO 50
Lítið er fallegt! Lítið og með glerbyggingu er sérstaklega fallegt! Ótrúlega stórir gluggar bjálkahússins Piste opnast í tvær áttir og færa náttúruna nær þér. Yfirbyggða veröndin býður upp á notalegt rými fyrir samveru og grillveislur yfir sumartímann, sem er alltaf þörf á.
Hægt að framleiða með bæði CUTsystem og LOGsystem.
Verð á efnispakka:
Innifalið í efnispakka
Teikningar og önnur gögn:
- Framleiðsluteikningar fylgja, ekki íslenskar teikningar né heldur íslenskir séruppdrættir.
- Efnislisti yfir bjálka
- Efnislisti fyrir allt viðarverk sem er innifalið
- Leiðbeiningar um samsetningu
Útveggir
- Allir bjálkar í útveggi koma heflaðir og tilsagaðir
- Verð á húsum miðast við bjálka 135 x 195mm
- Glugga- og hurðakarmar
- Einangrunarkítti milli bjálka og í hornin
- Þéttipappi milli gólfplötu og bjálka
- Múrboltar
- Járnlengingar á bjálka
Innveggir
- Hefðbundnir grindarveggir 39x66mm
- Bjálkapanill í samræmi við bjálkann í húsinu.
- Gifsplötur (GEK 13) á rökum svæðum og bak við skápa. (Gifsplötur ekki innifaldar)
Þak
- Þaksperrur (cc 900mm)
- Loftunarristar
- Þakkæðning
- Vinklar, gataplötur, naglar
- Loftapanill
Gólfefni
- Gert ráð fyrir að húsið fari á steypta plötu
Gluggar
- MSEA gluggar hvítir tré- og ál með þreföldu gleri sem opnast inn
- Flugnanet fyrir opnu fögin
Útihurðar
- Hvítar að utan og innan
- Þrefalt gler með sólvörn í hurðum
- Hurðarkarmar úr hvítir furu
- Þröskuldur úr harðvið
Innihurðar
- Hvítlakkaðar furuhurðar
- Þröskuldar fyrir baðherbergi
- Rennihurðar eru ekki innifaldar
Stigi innanhúss (þar sem við á)
- Lakkaðar furuhurðar
- Þröskuldar fyrir baðherbergi
- Rennihurðar eru ekki innifaldar
Verönd
- Pallaefni í verönd 28x95mm
- Dregarar undir verönd 48×98..198mm cc600
- Efni í handrið 28x95mm og 28x45mm
Húsin afhendast á hafnarbakkanum í Þorlákshöfn.








